编者按:
尹军琪专著《现代物流系统集成-方法、实践与思辨》一书自出版以来,受到行业内的广泛关注。今天分享一篇经典案例,看看当时的技术与应用,或许您会对伍强有新的了解。
01项目背景
我国医药物流配送中心自2003年国药开启了自动化物流系统建设的序幕以后,现代医药物流系统的建设就此如火如荼的展开。10余年间,以国药上海物流中心(以下称为I期工程)为基本模板,在全国建成各种规模的物流中心有数百个之多。其中仅国药本身就建设了40多个自动化系统,其它如上海医药、华润医药、华东医药、九州通医药、老百姓大药房等重点企业,也相继建设了一大批自动化医药物流配送中心。
2013年,经过10余年的探索,作为医药领域的领头羊,国药一直在思考医药物流如何总结经验和升级换代的问题。此时的物流技术已经有了大的改变,无论是整件拣选还是拆零拣选,自动化水平都有质的提升,自动拆垛和码垛技术,“货到人”拆零拣选技术等已在国外开始广泛应用。另一方面,国药集团经历10年快速发展,已经从2003年的100多亿元猛增至1000多亿元。作为国药大本营上海的业务,已经达到200亿以上,特别是医院国大药房业务和卫计委B2C配送业务的增加,原有物流中心无论是处理能力还是业态形式已经不能满足发展需求,新配送中心建设提上议事日程,在此背景下,国药上海II期工程就此展开。
II期工程位于原物流中心东侧,中间需要横跨康宁路。总面积约10万平方米,分为南北两部分。为了均衡每座仓库的业务,国控项目主管领导提出了从宏观论证三座仓库的定位和联动问题。其中北库作为医疗器械库,南库承担医院业务和卫计委的B2C配送业务,而I期库房则承担第三方物流和分销业务。
本案例对南库的设计进行简要说明。
02设计方案
医院配送业务与卫计委的业务有一个共同的特征,即拆零业务比较大。与其它系统不同的是,新物流中心对低温库的需求有比较大的增加。这些都是在设计阶段即已经确定的战略方针。
基本设计需求是:库存35~40万件,日发货2万件,其中拆零10000行以上。这一数据需求并非太大,所以设计也不是非常困难的事情。但业主明确提出了面对人工成本日益增加的现状,以及提升服务水平和达到行业示范作用的需求,需要采用一些新技术。
什么是当时的新技术呢?设计组对此进行了探讨。在收货环节,机械手码垛已经在生产系统开始使用,但流通领域使用比较少;在储存环节,各种各样的自动化技术(包括密集存储技术)已经非常普遍,也谈不上新技术了,四向穿梭车还没有使用;在输送环节,AGV技术已经成熟,但价格昂贵,其应用主要在于制造业,流通业非常少;在拣选环节,虽然已经有应用自动拣选技术的案例,如A字架技术已经存在很长时间,但应用于中国的案例少之又少;“货到人”拣选在国外已经成熟,但中国还没有先例;在分拣阶段,快速分拣系统不仅技术成熟,即使是国控本身,也已经有多套系统在应用。
针对这一现状,项目组提出采用多层穿梭车技术完成“货到人”拣选的策略,在事后看来,国控的这一决策的确是开风气之先的重大举措。
今天看来,“货到人”拣选技术有很多种,其中最火爆的当属kiva系统,但在当时,可选的技术只有SCHEAFER的旋转货架和KNAPP的多层穿梭车,kiva系统仅限于亚马逊公司自己使用。
为什么没有采用机械手自动拣选和码垛技术,主要是考虑3D图像识别还没有成熟,这一技术的应用后来留到了山西项目完成。
给根据以上考虑,做出的总体方案如下:
图1 总体布置图(一层)
二层局部布置图(“货到人”拣选区)如下:
图2 “货到人”拣选系统布置图(二层局部)
系统主要配置如下:
03关键技术
本项目的关键技术有两个,一个是冷链的无缝连接技术,一个是“货到人”拣选技术。
冷链无缝连接是新版GSP所要求的,其主要宗旨是要求车与库连接过程中不要出现“断链”的情形。这无疑给设计带来困难。
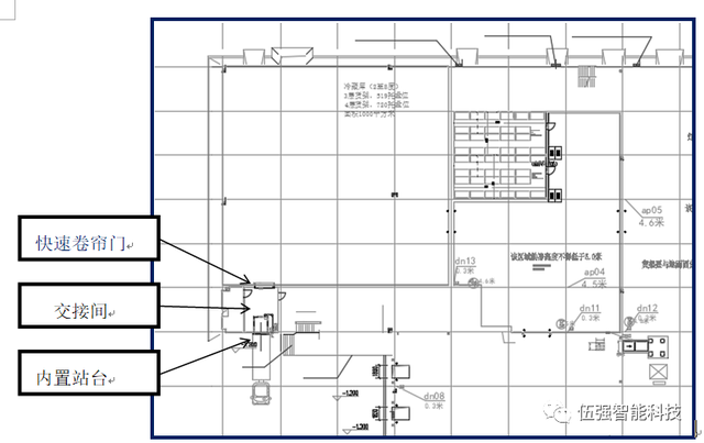
本次设计考虑到现场情况,设计了专门的医药冷链通道,采用内置站台,交换间,快速卷帘门等技术,完成了“无缝”连接的设计需求。见下图:
图3 冷链设计方案示意图
本项目冷链“无缝”连接的设计思路,获得了行业的认可,给后来者提供了参考。
关于“货到人”拣选,是物流作业中的新思维。与之对应的“人到货”拣选已经为大家所熟悉。效率低,错误率高是其主要问题。而“货到人”拣选从根本上解决了这一问题。
项目组经过反复研究,最终决定采用KNAPP公司的多层穿梭车(Multi-shuttle)作为“货到人”拣选的主要技术,用以完成快速存取作业。KNAPP是世界著名的物流系统集成商,尤其在医药物流领域,是欧洲拥有超过80%的市场占有率。KNAPP研究“货到人”拣选已经有近15年的历史,并在全世界拥有众多的成功案例。
“货到人”主要由快速存取系统、输送系统、以及拣选工作站组成,此外还包括换箱工作站与包装工作站。其中快速存取系统和拣选工作站是关键。KNAPP公司提供的多层穿梭车存取系统将过去由Miniload完成的存取效率提升了4~5倍,拣选工作站则比“人到货”拣选快了5~10倍,而拣选准确性可以提高一个数量级。这是本项目最引人注目的地方。
图4 拣选工作站
拣选工作站的设计非常重要。分为上下两层,上层是储存箱,下层是订单拣选箱。储存箱按照拣选箱的要求,依次从储存区送达拣选站,电子标签提示拣选数量,同时还配置计算机仿真终端。一般情况下,拣选效率可以提高5~8倍。
附带说明一下,为了解决货到人拣选中A类品种的快速拣选问题,以便降低成本,本项目还采用了传统的流利货架拣选系统。这也是值得借鉴的方法。
04经验分享
国药上海II期工程的成功上线,是一件在行业内值得大书特书的事情。作为本项目的集成商之一,有一些经验值得分享。
首先是国药领导的创新精神。国药建设现代物流始于2003年,10年的经验并没有使他们满足于现状,而是如何总结和创新。顾一民总经理反复强调的是,经过10年的实践,大家的经验是什么,又有什么是不足的,10年来物流技术改变了什么,这些是建设上海II期工程的指导方针。
其次是团队合作精神。本项目参与方主要有伍强智能科技、KNAPP公司和国控自己的团队,其它配套厂家的团队则多达10余个。一开始大家的想法并不一致,沟通也有困难,如何协调一致成为最大的问题。但在长达3年多的时间里,无论是对总体方案的梳理,还是对“货到人”系统原理与接口的讨论,大家逐渐找到了共识。应该说,国控的团队付出了很多。尽管项目因为土建原因有很大的拖延,但大家始终没有抱怨,对每一个问题始终是认真对待,所以项目的上线非常成功。此外,KNAPP公司团队人员的专业精神也是令人钦佩的。
本项目成功上线后,真正起到了很强的行业示范作用,参观者络绎不绝。“货到人”设计思想逐渐深入人心,并成为此后10余年最炙手可热的物流拣选技术。这也许是这一项目最引人关注的地方。
关于伍强智能科技
北京伍强智能科技有限公司是国内知名的物流系统集成商,主要为全球客户提供专业的一站式智能物流系统整体解决方案,并提供高品质的AS/RS系统、MINILOAD系统、箱输送分拣系统、穿梭车系统、A架分拣系统等物流装备,以及WMS、蜂鸟中台等核心软件系统。总部位于北京信息技术产业基地,在广州、苏州、台州、保定、贵阳、西安等多地设有分支机构或办事处。公司用户遍布全国、产品远销海外。先后承接了650多项形式各异的物流系统,行业覆盖医药、服装、机械、电商、快销品、图书、烟草、零售、教育实训等。








时间:下半年
地点:上海












